Kömmerling PVC Ramen – Duitse Technologie in Belgische Woningen
Kömmerling 70 n.Chr. – De voordelen in detail
Thermische isolatie, geluidsisolatie en veiligheid
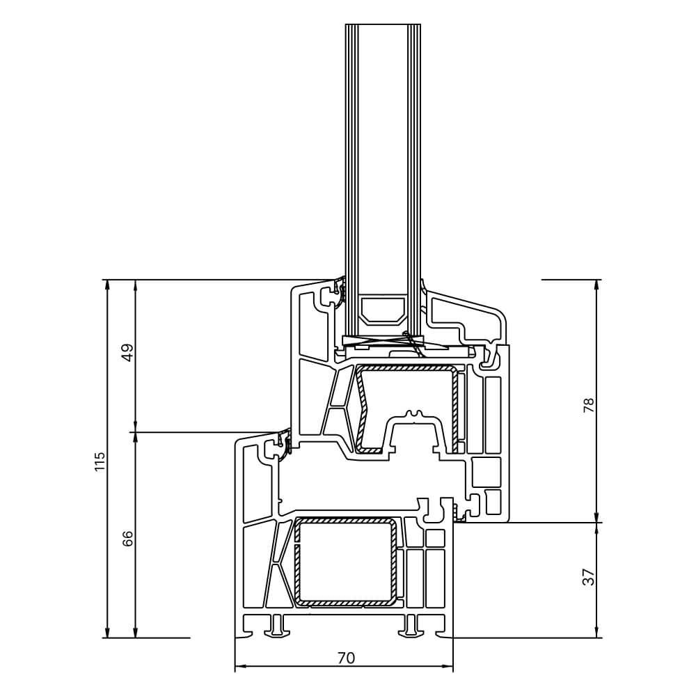
Kömmerling kunststof ramen bieden uitstekende thermische isolatie, geluidsisolatie en veiligheid. Het 5-kamerprofiel Kömmerling 70 AD heeft een inbouwdiepte van 70 mm, waardoor het kozijn effectief kan worden gecombineerd met dubbel glas en er toch voldoende ruimte overblijft voor driedubbel glas. Dit maakt het Kömmerling 70 AD profiel een ideale keuze voor moderne, energiezuinige woningen, omdat u kunt vertrouwen op een uitstekende thermische en geluidsisolatie.
Ongewenste binnenkomende of ontsnappende warmte kan tot een minimum worden beperkt met de juiste beglazing. Met een goede thermische isolatie, gedefinieerd door een lage warmteoverdrachtscoëfficiënt (U-waarde), biedt het Kömmerling 70 AD profiel precies dit met een uitstekende Uw-waarde van 0,92 W/m²K. De 2 ingebouwde afdichtingsniveaus maken het raam bovendien bijzonder geschikt voor laag-energiewoningen.


Kömmerling 76 AD
Naast de uitstekende thermische eigenschappen scoren de Kömmerling 70 AD-profielen ook op het gebied van geluidsisolatie. Speciaal ontworpen geluidsisolerende beglazing kan zelfs optioneel in de configurator worden toegevoegd om binnenruimtes extra af te schermen van lawaai. Of misschien combineert u het profiel liever met onze hoogwaardige veiligheidsbeglazing – naast extra sluitpunten voldoet het Kömmerling 70 AD-profiel aan de inbraakwerendheidsklasse RC2, wat het een echte allrounder maakt.
De voordelen op een rij
5-kamer Kömmerling-profiel
Hoekige uitstraling door verspringende constructie
70 mm inbouwdiepte
Verkrijgbaar met dubbele of driedubbele beglazing
2 afdichtingen
Zeer goede thermische isolatie, Uw-waarde = 0,92 W/m²K
Onderhoudsarm, weerbestendig oppervlak
Duitse merkkwaliteit
Kömmerling 76 AD
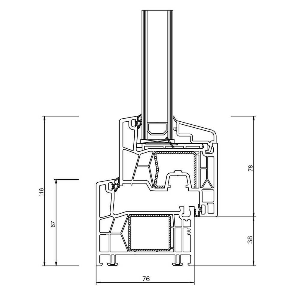
De inbouwdiepte van 76 mm van het 5-kamer Kömmerling 76 AD-profiel biedt voldoende ruimte voor zowel dubbel als driedubbel glas. Vooral met driedubbel glas is het raam ideaal voor moderne laagenergiewoningen, omdat ongewenste in- of uitstroom van warmte tot een minimum wordt beperkt en zo een comfortabele, stabiele binnentemperatuur wordt gehandhaafd.
Het profiel kan bijvoorbeeld een uitstekend lage thermische isolatiewaarde (UW) van 0,81 W/m²K behalen. De thermische prestaties van kunststof (U-PVC) overtreffen die van aluminium of hout en in het geval van de Kömmerling 76 AD dragen hoogwaardige afdichtingen verder bij aan deze uitstekende isolatie.
Twee afdichtingen worden bijvoorbeeld gebruikt om ongewenste warmteoverdracht te verminderen en er kan een extra thermische randafdichting, oftewel een “warme rand”, worden toegevoegd.

De voordelen op een rij

Kömmerling 76 MD
Het Kömmerling 76 MD-profiel kan worden geconfigureerd naar individuele wensen en smaak. Zo kan er worden gekozen uit verschillende beglazingen. Sommige beglazingen, zoals veiligheidsglas, bieden een superieure slagvastheid, terwijl andere, zoals een siervariant met dubbel glas, privacy en charme toevoegen. Voor een finishing touch kunnen glasroeden worden toegevoegd en kan de kleur van het raam worden gekozen uit ons uitgebreide RAL-palet. Tinten zoals antracietgrijs of goudkleurig eiken zijn populaire favorieten.
De gekozen kleur voor een Kömmerling 76 MD-raam wordt aangebracht door middel van een innovatief folieproces, wat bijdraagt aan de duurzame afwerking en het onderhoudsarme karakter van het raam.
In tegenstelling tot bijvoorbeeld hout, dat regelmatig moet worden geolied en opnieuw geverfd, overtuigt uPVC met een decoratieve folie door zijn weerbestendigheid en duurzaamheid. Het populaire oppervlak heeft slechts een beetje water en afwasmiddel nodig om vuilophopingen te verwijderen en blijft jarenlang in goede staat.

De voordelen in één oogopslag
- 6-kamerprofiel
- Hoekige uitstraling door verspringende vormgeving
- 76 mm inbouwdiepte
- Verkrijgbaar met dubbel en driedubbel glas
- 3 afdichtingen
- Uitstekende thermische isolatie, Uw-waarde = 0,77 W/m²K
- Geschikt voor lage-energiewoningen
- Onderhoudsarm, weerbestendig oppervlak
- Duitse merkkwaliteit
Kömmerling 88 MD
Hoewel ze gemaakt zijn van uPVC, hoeft u met het Kömmerling 88 MD-profiel van Fenestras niet af te zien van de warme, gestructureerde uitstraling van houten ramen. U kunt kiezen uit diverse imitatiehoutdecorfolies om het raamoppervlak te coaten. Of het nu gaat om goudkleurig eiken, notenhout of een van onze RAL-kleuren, de vleugel en het kozijn zijn voorzien van een uv- en weerbestendige decoratieve afwerking die jarenlang mooi blijft.
Bij Fenestras hebben klanten een ruime keuze en dit beperkt zich niet tot kleuren; er kunnen ook roeden worden toegevoegd, evenals speciaal ontworpen glasvarianten, zoals veiligheidsglas, decoratieve glaselementen en geluidsisolerende glaselementen. Het Kömmerling 88 MD-raam kan daarom een maatwerkproduct worden, afgestemd op uw exacte eisen en wensen.
Met deze extra afdichting in het profiel biedt het Kömmerling 88 MD-raam een verhoogde geluids- en warmte-isolatie – maar geloof ons niet op ons woord, dit komt ook tot uiting in de indrukwekkende productspecificaties.

U-waarden bepalen bijvoorbeeld de hoeveelheid warmteverlies per uur per vierkante meter. Dit betekent dat hoe lager de U-waarde, hoe minder energie er verloren gaat. Om aan de hoogste eisen te voldoen, bedraagt de thermische Uw-waarde van dit profiel een uitzonderlijk lage 0,72 W/m²K.
De voordelen op een rij
- 7-kamerprofiel
- Hoekige uitstraling door verspringende vormgeving
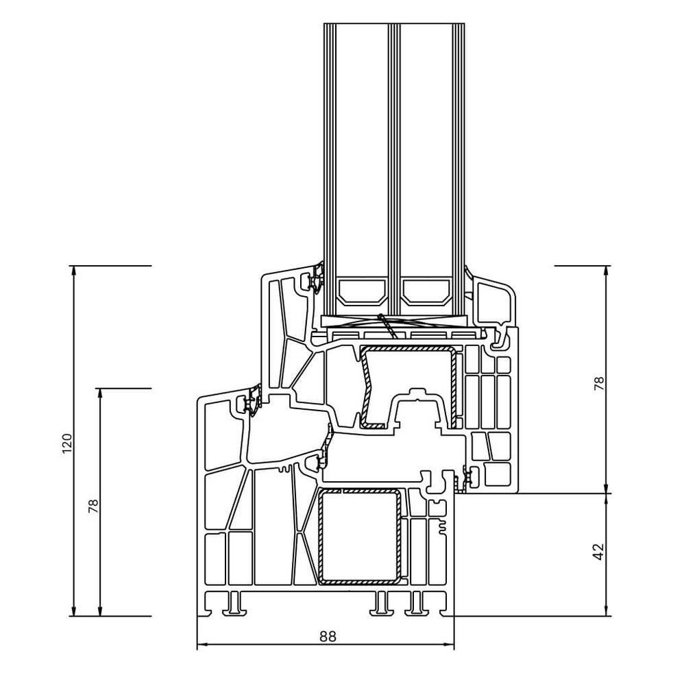
- 88 mm inbouwdiepte
- Verkrijgbaar met driedubbel glas
- 3 afdichtingen
- Uitstekende thermische isolatie: Uw-waarde = 0,72 W/m²K
- Geschikt voor lage-energiewoningen
- Onderhoudsarm, weerbestendig oppervlak
- Ingebouwde stalen wapening
- Duitse merkkwaliteit

